Gewinnspiel
Traumhaus-Suche
Musterhaus-Liste
Hausbau
Energiesparen
Wohnen
Rund ums Haus
Ratgeber
Mediathek
START
Hausbau
Fertighaus
Musterhausparks
Effizienzhaus
Passivhaus
Plusenergiehaus
Ausbaustufen
Bausatzhaus
Holztafelbau
Holzständerbauweise
Holzskelettbau
Blockbauweise
Architektenhaus
Modulhaus
Mehrgenerationenhaus
Bauplanung
Das Eigenheim als Green Building
Fertighaus oder Massivhaus
Versicherungen für Bauherren
Wetterfestes Haus
Fertighäuser werden immer vielfältiger
Instandhaltung
Eigenheim
Wohnen im Eigentum
Steildach
Psychologie beim Hausbau
Besonderheiten beim Bau eines Bungalows
Bauen oder kaufen?
Eigenheim individuell planen
Tipps für Bauherren
Massivhaus
Die größten Architekturtrends
Schieferkonfigurator geht online
Fertighaus in Massivbauweise
Massivholzhaus
Stadtvilla Lugana
Viebrockhaus Edition 445
Fakten zum Massivhaus
Zukunftstrends beim Hausbau
Bauen mit Stahl
Massivhaus bauen
Planungsfehler beim Hausbau
Umbau
Kosten für den Hausbau kalkulieren
Eigenheim planen
Neubauprojekte vermarkten und den Gewinn maximieren
Spa-Bereich planen
Holzhäuser
Blockhaus
Holzfertigbauweise
LéonWood Blockhaus Lillesand
LéonWood Blockhaus Rex
LéonWood Blockhaus Espoo
LéonWood Blockhaus Neu Finnland
LéonWood Vikkinghus
Frammelsberger Flachdachbungalow Design 124
LéonWood Blockhaus Adria
LéonWood Blockhaus Enztal
Fullwood Haus Seeblick
Fullwood Haus am Oberrhein
Fullwood Haus Elzruhe
Fullwood Haus Sommerwiese
Fullwood Musterhaus Hohenlohe
Das biologische Haus
Fullwood Haus Heuberg
Stommel Haus Holunder 2
Fullwood Haus Mittelfranken
LéonWood Blockhaus Waldschlösschen
Nordic-Haus Haus Bremer
LéonWood Blockhaus Canada
Energiesparhäuser
Schneller ins Eigenheim durch Modulbauweise
Niedrigenergiehaus
Energieeffizient bauen
Nachhaltigkeit beim Hausbau maximieren
Fingerhut Haus Juna
SchwörerHaus Kundenhaus Elfenberg
FingerHaus Fino 200
Fingerhut EnergiePlus Haus R 140.20
Komforthäuser
Nur Glas, Holz und Schiefer
Schiefergrau inmitten von Grün
Danwood VISION Musterhaus Wolfsburg
Danwood VISION Vision 172
Danwood VISION Vision 195
GUSSEK HAUS Modell Cannstatt
Danwood VISION Bungalow VISION 154
Schieferdachsystem von Rathscheck
Danwood-Bungalows
Huf Haus ART 3
FingerHaus SENTO 500 B
FingerHaus Bravur
FingerHaus Bungalow NIVO
KitzlingerHaus individuelles Architektenhaus
KD-Haus KD-244
FingerHaus Altersgerechter Bungalow
Ytong Bausatzhaus Kundenhaus Kramer
Familienhäuser
Familientaugliche Bauhausvilla
Kindgerecht bauen
Stadtvilla Family 144
Ageless Living
Stadtvilla Ponticelli
Heinz von Heiden - Musterhaus Ratzeburg
Dan-Wood
FingerHaus Musterhaus Neo
Hanse Haus Bungalow 80
Sparhäuser
Neubau oder Sanierung
Günstige Häuser
Günstig bauen
Living Haus Sunshine 165
Luxhaus Musterhaus fine
ProHaus ProStyle 128
Gerüst kaufen
Altbausanierung
Bau- und Wohntrends aus den USA
Wenig Wohnraum
Keller
Keller oder Bodenplatte
Bodenplatte
Kellerbau im Winter
Wohn- oder Nutzkeller
Licht im Keller
Einliegerwohnung
Keller als Schutzraum
Komfortable Lösung
Erdarbeiten und Keller im Paket
In vier Schritten zum Keller
Kellerdämmung
Keller dämmen
Kellerdeckendämmung
Kellerdeckendämmsystem
Perimeterdämmung
Frostschürze
Kellerabdichtung
Fertigkellerbau von A bis Z
Schwieriger Keller-Baugrund
Wohnkeller
Nachhaltiger Keller
Bodengutachten
Erdarbeiten
Kellerbau
Lichtschachtabdeckung
Schlanke Betonwände
Betonfertigteile
Der Keller
Teilkeller
SafeLight
Wohngesundheit
Schallschutz
Angenehme Temperaturen im Haus
Elektrosmog
Schalldämmung
Hitzeschutz am Holzfenster
Baustoff Lehm
Bauen für Allergiker
Schimmel
Bauen mit Holz
Aktionshaus
Top 10 Häuser
Musterhäuser aktuell
Gewinnspiel
Energiesparen
Heizung
Gasheizung
Ölheizung
Heizungswartung
Heizungssanierung
Brennwertkessel
Hybridheizung
BEKOTEC-THERM
Hybridheizung von BRÖTJE
Heizungstausch im Bestand - Wärmepumpe und Holzheizung
Brennstoffzellenheizung
Heizungspumpe
Hydraulischer Abgleich
Kontrollierte Wohnraumlüftung
Fußbodenheizung
Fußbodenheizung selbst verlegen
Elektroheizung
Energiemanagement
Schlüter-DITRA-HEAT-E
Neue Wärmepumpe aroTHERM plus
Neue Heizung
Anschaffung und Instandhaltung
Infrarotheizung
Innovative Heizsysteme für modernes Wohnen
Wärmedämmung
Macht Dämmen Sinn
Hitzeschutz mit Sonnenschutz
Dämmpflicht
Fassadendämmung
Fassadensanierung
Faserzementplatten
Holzverbundwerkstoff
Wärmedämmverbundsystem
Fassadenverkleidung
Fassadenprofile
Dachsanierung
Dächer und Fassaden sanieren
Dachdämmung
Natürlich dämmen
Dachgauben
LINITHERM LOOP
Steildachsanierung
Aufsparrendämmung
Kerndämmung
Innendämmung
Oberste Geschossdecke dämmen
Dämmstoffe
Blower-Door-Test
Thermografie
Dacheindeckung
Schieferdach
Sturmsicheres Dach
Erneuerbare Energien
Solarthermie
Solarheizung
Sonnenwärme
Holzheizung
Pelletheizung
Pelletheizung mit Solaranlage
Holzpellets
Mit Pellets heizen
Scheitholzkessel
Pufferspeicher
Kaminofen
Pelletofen
Wasserführender Kaminofen
Specksteinofen
Dauerbrandofen
Austauschpflicht für Kaminöfen
Schiedel Kingfire
Cubifocus
Slimfocus
Contura Heizkamine i31 und i41
Contura Heizkamin i51
Wärmepumpen
Wärmepumpe
Luft-Wasser-Wärmepumpe
Sole-Wasser-Wärmepumpe
Wasser-Wasser-Wärmepumpe
Luft-Luft-Wärmepumpe
Hybrid-Wärmepumpe
Brauchwasserwärmepumpe
Ecodan Luft-Wasser-Wärmepumpe
Split-Klimaanlage
Heizungsmodernisierung in vier Reihenhäusern in Burgberg
Wärmepumpe und Photovoltaik-Anlage
Wärmepumpe im Altbau
Wärmepumpe für den Altbau
Neue Wärmepumpe für das Schwedenhaus
Energieeffiziente Heizkörper
Wärmepumpe statt Ölheizung
Wärmepumpe in Neu- und Altbau
Klimaschonend heizen und kühlen
Wärmepumpen mit Kühlfunktion
Heizungstausch
Energiesparen mit Wärmepumpe
aroTHERM plus
Lüftungsanlage (KWL)
Kontrollierte Wohnraumlüftung
Kühle Köpfe für heiße Tage - Lüftungssystem mit Kühlfunktion
Ästhetische Frischluftzufuhr
Energiesparen Dank Lüftungsanlage
Gesundes Wohnen ohne Lüftung nicht denkbar
Lüftungsanlage hilft bei Allergien
Frische Luft im Tiny Haus
Inbetriebnahme einer Lüftungsanlage
Zehnder ComfoAir Q
Zehnder ComfoAir 180
Zehnder ComfoClime System
X-well Lüftungssystem
Enthalpietauscher
Photovoltaik
Die Sonne schickt keine Rechnung
Balkonkraftwerk, selbstgemacht
Windige Solar-Anbieter? Was Bauherren wissen sollten
Stromfressern auf der Spur - Energiemanagement zuhause
Balkonkraftwerk
Wechselrichter
Solarstrom effektiv nutzen
Bauen für die Zukunft
Strom mit Stil vom Schieferdach
Energiekompass
Einspeisevergütung
Solarspeicher
Solardachziegel
witty solar
witty plus
Hybrid-Wechselrichter GEN24 Plus
Sonnenenergie vom Schieferdach
Schieferdach und Photovoltaik-Anlage
Photovoltaik und Wallbox
Photovoltaik und Wärmepumpe
SpriColor
Wallbox
Strom-Cloud
SENEC.Cloud
Batteriespeicher
Redox Flow Heimspeicher
Q.HOME EDRIVE
Solarlösungen
Wohnen
Möbel und Deko
Gesundes Wohnen
Wohnzimmer mit Mehrwert - sinnvoll und ästhetisch einrichten
Wohnkonzepte
Smarte Einrichtungssysteme
Retro Möbel
Schlafzimmer
Möbel für Familien
Freizeit- und Partyraum
Fitnessraum im eigenen Zuhause
Schnitzereien und ähnliche Verzierungen an Holzbauteilen
Hausautomation
Smarter Sonnenschutz: Warema verknüpft das Funksystems WMS mit dem KNX Standard
Energie sparen und Heizkosten senken
Smart Home Ready – Automatisierter Sonnenschutz als intelligenter Allrounder
Sicherheit und Komfort in der dunklen Jahreszeit
WLAN mit Orbi von Netgear
Smarte Helfer für ein sicheres Zuhause
VarioControl
JUNG HOME: Sicher und smart
Shelly Plus Plug S
Smart Home einfach planen und nachrüsten
Mit Steckdosen Energiesparen
Elektroinstallation mit Hygieneplus
ekey Fingerprint für maximalen Komfort im Smart Home
Klein aber oho: Die neue Mini-Serie von Shelly
Schlatzentrale für das Smart Home - Das Shelly Wall Display
BLU-Serie von Shelly
Digitales Einbauradio mit Bluetooth
Flexible Lösungen für Licht und Schatten
M-Pure Ocean Plastic
Moderne Lichtschalter für jeden Einrichtungsstil
ekey Fingerprint für maximalen Komfort im Smart Home
Türkommunikation mit Format
ekey dLine: Ein Fingerprint für die ganze Familie
Zutritskontrolle Siegenia
Kippschalter LS 1912 in Graphitschwarz und Schneeweiß matt
Jung Schalterprogramm LS990 - Ein Klassiker zeigt Vielfalt
Steckdosen mit Mehrwert
Lichtsteuerung
Nachhaltiger Fahrspaß
witty start
Smarte Haustürsteuerung
Wiser Home
Einbruchschutz
KNX-Gebäudetechnik
Touchpanel Fabro KNX
Sicherheitskamera
ekey dLine Fingerprint
ekey uno Fingerprint
Türschloss Linus
JUNG Smart Radio DAB+
Automatisierte Rollladensteuerung
Centero Home
Smart Home
Moderne Sicherheitstechnik
Raumklima Starterpaket
Schalterdesigns live erleben - AR-App von Jung
Außensteckdose im stilvollen Schalterdesign
Küche
Familienküchen
Offene Küche
Wohnküchen
Welche Küche darf es sein?
Barrierefreie Küche
Küchenplanung
Küchenrückwand
Kochfeldabzüge
Küchengeräte
Zweitküche im Keller
Blanco Drink Soda
Trendfarbe Schwarz
drink.hot Evol-S Pro
Badezimmer
Wellnessbad
Wärmekomfortgerät Zehnder Zenia
Zehnder Zeno Wing
Zehnder Design-Heizkörper
Zehnder Zenia
Zehnder Yucca
Zehnder Tetris
Schlüter-ARCLINE
Handtuchwärmer
Badplanung
Duschablage
Duschwände
Klein- und Schönheitsreparaturen
Interbad
Kaminofen
Pelletofen
Wasserführender Kaminofen
Gaskaminofen
Specksteinofen
Dauerbrandofen
Pelletofen Mako
Austauschpflicht für Kaminöfen
Schiedel Kingfire
Slimfocus
Contura Heizkamin i51
Schiedel ABSOLUT Design-Fertigfuß
Fenster & Türen
Bauen mit Glas
Fenster
Kunststofffenster
Holzfenster
Holz-Alu-Fenster
Eine Frage des Durchblicks - Außenliegender Sonnenschutz
Insektenschutz
Eingangsbereich
Sonnenschutz im Backstein-Haus
Rollladen
Rollladenantrieb
Elektrische Gurtwickler
Rollladenkasten-Dämmung
Innentüren
Sicht- und Sonnenschutz für den Innenraum
Schiebetürsystem
Dachfenster
Dachfensterpflege
Velux Dachbalkon
Insektenschutz Dachfenster
Dachfenster Schallschutz
Hitzeschutz im Dachgeschoss
Wand & Boden
Wandgestaltung
Wandfarben
Treppen
Treppe mit Schubkasten
Fliesen
Teppichboden
Klimafreundlich Bauen
Molto-Sortiment
Fußbodenheizung und Fliesen
Akustikpaneele
Wohnen mit Fliesen
Holzboden
Parkett
Korkboden
Laminat
Laminat verlegen
Eco+ Collection
Bauhaus Laminat
Estrich
Haustiere und Hausbau
Treppenrenovierung
Verlegeunterlage
Beleuchtung
Beleuchtungs-Tipps
Tageslicht
Lichtinszenierung
LED
Lichtplanung im Neubau
Perfekte Beleuchtung
Zentralstaubsauger
Rund ums Haus
Garten
123Gartenplaner
Automatische Gartenbewässerung
Gartenmöbel
Gartendeko
Gartenplanung
Gartengestaltung
Dachbegrünung
Beton- und Naturstein
Gartenwege
Gartenhaus
Do it yourself
Metallzäune und Metallgeländer lackieren
Balkon & Terrasse
Ist das nicht prima? Was für ein Klima!
Die Qual der Farbwahl hat hier jeder!
Wohlfühlklima im Sommergarten
Terrassendächer aus Aluminium
Lamellendach selbst gestalten
Sonnen- und Wetterschutz: Planungstipps für den Outdoorbereich
Baustory: Susannes Terrassendach
Balkon
Outdoor Saison verlängern
Markise
Sonnenschutz
Lamellendach
Pflegeleichte Traumterrasse
Standwärmestrahler
Kassettenmarkise MX-2
Kassettenmarkise MX-3
Markisen im Metall-Style
Markise im Großformat
Markisentücher smart art
Markise mit Akzentlicht
Die Bedeutung des Sonnenschutzes
pergola-Markise
Markisendesign
Markisenkauf
Überdachte Außenbereiche
Terrassengestaltung
Terrasse einrichten
Terrassendielen
WPC-Terrassendielen
Kebony-Terrasse
Cedral Terrassendielen
Wintergarten
Wintergartenplanung
Sonnenschutz für Wintergärten
Welche Bauform für den Wintergarten?
Material der Wintergartenkonstruktion
Die richtige Verschattung
Garage & Carport
Garage
Garage modernisieren
Garage planen
Fertiggarage
Garagentore
Planung der Garage
Carport
Garagen-Sektionaltor
Ratgeber
News
Heizungsförderung
Heizungstausch
Richtig heizen und lüften
Elektrische Gurtwickler
Bauzinsen
Terrassendielen
Wärmepumpe
Badezimmer
Bauspartarif
Fensterfalzlüfter
Holzschutz
Neues Musterhaus
Bauherrengemeinschaften
Sonnenschutz
Fenster und Türen
Firmeninsolvenzen
Wohnraumlüftung
Aktionshäuser
Immobilienerben
Ein Zuhause, das von selbst reagiert - Shelly
Garagentorantrieb
Sanierungspflicht
Rensch-Haus
Verstärkte Holznutzung
JUNG HOME: Einfach planen, sicher wohnen
Aluminium-Holz-Fenster
Rollladenkästen dämmen
Eigene Experten auf der Baustelle
Wartungsverträge für Lüftungsanlagen
Fertighaus
Stromspeicher
Badezimmer energiesparend beheizen
Infrarotheizung
Roth-Massivhaus
Gesund, Komfortabel, Effizient
Solarthermie
Bei der Planung der Außenanlagen an das Klima denken
Wohngebäudeversicherung
Ölheizung
VPB zum Heizungsgesetz
KNX Server von Jung kommunizieren mit Samsung Smart Home
Solarstrom
Online-Infoabend
Förderprogramm WEF
Akzente mit Steckdosen und Lichtschaltern
Ästhetik für die Fassade - Neues Kombi Außenwandgitter von Zehnder
Tag des deutschen Fertigbaus
Neues Indach Photovoltaik-System
Wärmedämmung
Smart Home nachrüsten
Edel in Metall - USB-Steckdosen von JUNG
Einruchschutz
Energieeffizienz, die sich rechnet
Schimmelbefall
Rauchmelder prüfen
VPB: Schlechtwetter in den Vertrag aufnehmen
KNX Touchdisplay im Schalterdesign
Bauschäden
Energiekompass
Hausbau
Umrüsten auf Wärmepumpe
Fördermittel für Gebäudesanierung
Jubiläumsgewinnspiel
Modulare Wärmepumpe
Betonfertighäuser
Heizkosten sparen
Eine neue Generation Raumthermostate
Energieeffizienz-Heizkörper
Lamellendach
Treppen
Kellerausbau
Fossile Brennstoffe
Energiesparen
Pelletheizungen
Heizen mit Biomasse
Pergola-Markise
Sanierungsfahrplan
Grunderwerbsteuer
Pflanzen gegen Hitze
Schauräume von markilux
Smartes KNX-Upgrade
Heizungsmodernisierung
Elektrische Hauswärmetechnik
Garagentoröffner
Heiztechnik der Zukunft
Faserzement
FingerLoft
Homematic IP
JUNG vereint eNet SMART HOME mit dem Internet of Things
Smarte Terrasse
Heizen mit Öl und Gas
Tipps für den Markisenkauf
Solardachpflicht
KfW-Förderung
Muskelhypothek
Neue Musterhäuser
Hitzeschutz
Alte Heizkörper
Naturfarben
Backofen
CO2 sparen - Tipps für klimafreundliches Wohnen
Design-Regenspeicher
Stulp-Fenstertür
Design-Klimagerät
Sonnensensor
Baumängel
Smarte Rollladenantriebe
Grundsteuer
Rasenpflege
Durchlauferhitzer
Bodentreppen
Winkelbungalow Ahlbeck
25 Jahre Ytong Bausatzhaus
BEG-Förderstopp
Gartenküche
Außenbeleuchtung
Wärmepumpe im Bestand
CO2-Abgabe
Beleuchtung
Betonfertiggarage
Smarter Einbruchschutz
Fertighäuser
Smart KeyGarage
Energetische Sanierung
Intelligente Heizungsthermostate
Flächenheizung
Fassadendämmung
Rollläden
Gebäudesanierung
Kellersanierung
Wärmedämmverbundsystem
Speicherzentrale PELCOMPACT
Baufinanzierung
Stromfresser finden
Homelifte
Fairster Massivhausanbieter
Mieterstrom
KWK-Anlage
Musterhaus MEDLEY 3.0 in Mannheim
FertighausWelt Schwarzwald
Schutz vor Hochwasser
Duschwand
Zahlungsplan
Warmwassererzeugung
Regenwassernutzung
Kaminofen
Sommerlicher Wärmeschutz
Schattenfinder
Heizungscheck
Video-Sprechanlage
Erdwärmepumpe
Smart Home
Glatthaar Keller
Hybrid-Heizung
Energieausweis
Smarte Rasenbewässerung
Wissenswertes über Wärmepumpen-Heizkörper | Hurra-wir-bauen.de
Richtig heizen bei Aprilwetter
Terrassenplaner
Nachhaltige Terrassendielen
Stadtvilla mit Walmdach
Zentrale oder dezentrale Wohnraumlüftung
WPC-Terrassendielen
Homeoffice im Keller
Wohnen mit Kindern
Heizölpreis
Musterhaus SENTO 503
VISION by Danwood
CO2-Bepreisung
Hochbeet
Öl-Brennwertkessel
Küche in Steinoptik
Holzpellets
Musterhaus Treviso
Backsteinfassade
Richtig lüften
Glattziegel
Gebäudeenergiegesetz
Stromerzeugende Heizung
Bad-Klebehalter
Heizstatistik
Smarte Videotürklingel
Duschrinnen
Hausverkauf
Tondachziegel
Baukindergeld
Pelletpreis
Dachausbau
Terrassenplatten
Heizung im Sommer
Energiespartipps
Premium-Spachtelmasse
Dachhaie
Mehrwertsteuersenkung
Blitzableiter
ThermAir-Relax-Klima-Paket
Insektenschutz
Kulinarische Abwechslung für zu Hause
Solarthermie lohnt sich
Heizung mieten
Smarte Sicherheit
Bauvertrag
Markise
Maklerkosten
Smarter Garten
FertighausWelt Köln
Mähroboter
Hausbau trotz Corona-Krise
Poolumrandung
Kaldewei Cayonoplan Multispace
Unterlassungsurteil
WOLF CHT-Monoblock
Energieberatung
Elektro-Heizkörper
Darlehen stunden
Web-Seminar
Bauberatung
Lüftungs-Integralsystem
Bauzeitverzögerung
Heizungspumpentausch
Tafel-Infrarotheizung
Luft-Wasser-Wärmepumpe
Eigenversorgung mit Solarstrom
Smart Meter
Versicherungsschutz
Wegfall der Einspeisevergütung
Marktanreizprogramm
Funktgesteuerte Heizkörper-Thermostate
Dämmung
Infrarot-Kurzwellen-Heizstrahler
Lichtspiegelschrank
Brennstoffzellenheizung
Gussasphaltestrich
Pelletheizung
Tag der Musterhäuser 2019
Olivenholzparkett
Heizöltank
Biso-Schalungssteine
Tag der Küche
Nuki Opener
Nachhaltigkeits-Konferenz-Messe
Fenstersystem
Musterhausparks
Smarte Heizungssteuerung
Hebeschiebetüren
Handwerkersuche
Erneuerbare Energien
Abschirmfarbe
Stromsparen
Baustoff Holz
Photovoltaik-Heizung
Reinigung von Glasflächen
Checkliste Kühlgeräte
HomePilot
Heizungswartung
Molto Holzreparatur
Flächenheizungsfinder
3D App von markilux
Installationsrekord
Überwachungskamera
Hydraulischer Abgleich
Heizkosten
Hybrid-Wärmepumpe
Fußbodenheizung
Bebauungsplan
Gebäude-Energie-Gesetz
WeberHaus
Heinz von Heiden
Wohngesundheit
Energieeffizienzlabel
Designheizkörper
Naturholzboden
Heizung optimieren
SENEC.Solar
Fenstertausch
Rasenmäher
Badezimmerbeleuchtung
Wolf Smartset App
Klima-Profilsystem
Gabionen
Bauvertragsrecht
Zusatzheizung
Dämmung im Dachausbau
Bau-Innovationsforum
Bereitstellungszinsen
Studio-Fenster
home²
Barrierefreie Treppe
Sicheres Weihnachten
Holzmöbel aufarbeiten
Wasserkocher
Bauschäden beim Neubau
Fertighaus oder Massivhaus
Güteüberwachung
HausCompagnie
Feuchteschäden
Steigende Darlehenssummen
Bauen im Winter
glatthaar-fertigkeller
Fußboden- und Wandheizung
Luftreiniger
Wärmespeicherheizung
Schlafzimmereinrichtung
Danwood
Sektorenkopplung
Mietwohnung
Röhren-Heizkörper
Besser flüssig bleiben
Blockheizkraftwerk
Barrierefreiheit
Kühlende Wärmepumpe
HPSU compact Ultra
Regenrückhaltung
Zäune
Solarthermieanlage optimieren
Wohnpsychologie
Alurollladen
Küchenplanung
ELK Haus 161
Holzkamin
Hausprogramm Sensation
Immobilie als Altersvorsorge
Bondex Holzlasur
Haus Colmar
Nachbarschaft
Wellnessbereich
Schlüsselfertige Fertighäuser
Insektenschutz-Rollo
Velux Active
Beton-Architektur
Deutschlands Kundenchampion
Bienen-Begegnungshaus
BioLPG
Saugroboter
Massivhaushersteller
Fertigbau
Dusche
Frontmäher
Wärmepumpentarife
Klimaschutz
Doppelhaus
Wärmepumpen
Terrace Massive Pro
Eigentumserwerb im Alter
Badheizgerät
Musterhaus Leipzig
Pelletofen
Knecht Bauherrentage
Weiße Wanne
Winter-Aktionshäuser
Gartenmessen
Premiumheizöl
Strengere Grenzwerte
Energiekostenlos-Garantie
vqc-qualitaetscheck
Ventilatorheizer
Häuser für Allergiker
Heizungsexperte
FlyingSpace
Kostenfalle Heizung
Küchenarmatur
Smartes Zuhause
Habitree
Wohlfühlbad
Speicherofen
Flüssige Energieträger
Herbstputz
Richtig heizen
Smart tech-Akku
Energiebilanz
Designküche
Warmwasserspeicher
Wärmepumpenförderung
URSA PUREONE
Smart heizen
Gartenmöbel pflegen
Haus Sommerlinde
Deutsches Fertighaus Center
Staubsauger
Smart-Heating-Lösungen
area30
Smarte Haustechnik
Austauschpflicht
Luxhaus sonnenBatterie
Ziegel
Intelligenter Sonnenschutz
Einzelraumtemperaturregler
Schlüsselfertig bauen
Jubiläumshaus
Bauqualitätssicherung
Baumeister-Haus
Rubner Haus Prugger
Moderner Fachwerkbau
Außenjalousien
Holz-Fertighäuser
Intersolar Europe
Musterhaus Jazz
Raumthermostat
Eigenheim
Heimwerker
HausBauPark
Wärmesystem
Nebenkosten
Schallschutzfenster
FertighausWelt
Energie-Label
Team 7
HomeKit
Sunshine 144 V4
Rika Firenet
Wärmespeicher
Coqon
Wasseraufbereitung
Nachhaltige Bodenbeläge
Tipps für den Neubau
Echtholzböden
Architektenhaftung
Mineralische Dämmung
Villa Modena
Velux Messeneuheiten
Aluminium-Haustür
Stihl Test-Tag 2017
FertighausWelt Günzburg
Modernisierung
Traumhäuser
Wohnkomfort
Heizstudie
Sonnen- und Blendschutz
Service-Champion
Schwörer Healthy Home
Speicherlösung
Fingerhut Haus R 100.10
Fairster Fertighaus-Anbieter
Gartenmöbel winterfest machen
RAL Gütezeichen Holzhausbau
Billigfenster
Küchenspülen
Modern wohnen
Firmenjubiläum Baufritz
Dachfenster-Lösungen
Fertighausbranche
Hartbodenreiniger FC 5
Pflegetipps für Dachfenster
Tag der Musterhäuser
Landhäuser
Evolution Mannheim
Heizungs-Check
Massivhaus 2017
LED statt Halogen
Holz-Fertigbau
Wohn-Riester
WPC-Reiniger
Holz-Fertighaus
Gebrauchtimmobilie kaufen
140 Jahre Rensch-Haus
Holz-Fertighaus Produktion
GROHE Studie
Rotex Heizöltank
Deutscher Traumhauspreis 2016
Solaranlagenreinigung
Geschichte des Fertigbaus
Sichtschutz
Sonnleitner Kundenzentrum
Verwendungsmöglichkeiten Bausparvertrag
Baufritz Bio-Musterhaus
Jubiläums-Aktionspakete
DFH Familientag 2016
Tag der offenen Tür bei Fingerhut
Zinsentwicklung
Dachfenster putzen
Individuelle Fertighäuser
Einbruchschutzmaßnahmen
Bemusterung
Lehner Haus
Neue KfW-Förderung
Jahresbilanz der Heizungsindustrie
Aktionshaus Sunshine 143
Energieeffizient bauen
Anreizprogramm Energieeffizienz
Anbau
Finanzierungsrisiken
Sanierungshelden
STREIF Haus Musterhaus
Fertigkellerbau im Winter
Richtig heizen im Winter
Energiespeichersystem
Neuerungen EnEV 2016
Energieverbraucher
Holzfertigbauweise
Musterhaus Ingolstadt von Okal
Vertrauensranking
Rauchwarnmelder von Gira
Schutz vor Einbruch
SchrägdachCheck
KfW-Effizienzhaus 40
FertighausWelt Hannover
Musterhauseröffnung in Fellbach
Fördermittel
Bundesförderung für effiziente Gebäude (BEG)
Fördermittel der KfW
Fördermittel des BAFA
Die Energiewende
Baufinanzierung
Immobilienfinanzierung
Eigenleistung beim Hausbau
Eigenkapital bei der Immobilienfinanzierung
Unterstützung beim Hausbau
Baufinanzierung in der Elternzeit
Wie finde ich die beste Baufinanzierung?
Wie viel Haus kann ich mir leisten?
Bau- und Umzugskosten von der Steuer absetzen
Tipps für den Hausbau
Bauvorgaben
Immobilien beleihen
Fehler bei Neubau und Sanierung
Bauherren-Tools
Ein Haus bauen
Haussanierung auf Kredit
Wohnung finanzieren
Bau- und Leistungsbeschreibung
Steuertipp
Schwarzarbeit am Bau
Urlaub nach der Bauphase
Baustrom
VPB-Ratgeber
Kostenrisiko Baugrund: Unbedingt vorher abklären
Kosten für die Baustelleneinrichtung
Bauen trotz schwieriger Bodenverhältnisse
Probleme verhindern: Baugrundgutachten
Expertentipp: Balkonkraftwerk nur mit Zustimmung der Eigentümerversammlung
Fit für die Rente
Eigenverantwortung: Was kann ich tun?
Bestandsimmobilie sanieren
Macht Ihr Haus krank?
Suffizienz
Denkmalschutz - Was heißt das eigentlich?
Schutz vor Mehrkosten beim Bauen
Barrierefreiheit
Baumängel
Lastenzuschuss
Gutachter hilft bei Mängeln
Versicherungen für Bauherren
Schimmel im Altbau
Thermografie
Bauträgervertrag
BSB-Expertenrat
8 Tipps für barrierefreies Wohnen
Neun Tipps zu Wärmepumpen
Überzahlung vermeiden
Sicheres Smart Home
Bedarfsgerechte Modernisierung
Gebäudeenergiegesetz
Energiestandards
Neues Gebäudeenergiegesetz
Massiv- oder Fertigbauweise
Klimapaket
Lüftung
Kellerplanung
Bauabnahme
Einbruchschutz
Bauberatung
Zahlungsplan
Bau- und Leistungsbeschreibung
Wärmepumpen
Baunebenkosten
Baukosten
Bauen mit Architekt
Bauen mit Bauträger
Renovierung
EnEV 2016
Zahlungspläne am Bau
Hausbau
Anschlussfinanzierung
Neues Bauvertragsrecht
Heizen mit Strom
Trockenbau
Bauvertrag
Firmenpleite
Baulexikon
Mediathek
Zur Mediathek
Search
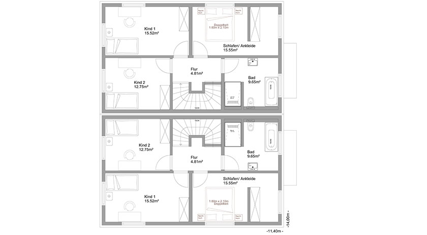
Troglia von Fertighaus WEISS
25.09.2025 | Fotostrecke |
Zurück zum Artikel
← Vorheriges Bild
7 von 8
Nächstes Bild →
Grundriss Obergeschoss
×